
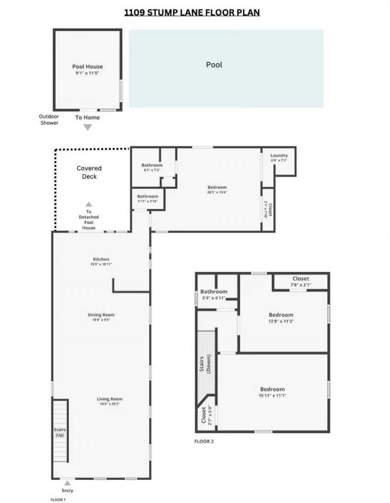
On a quiet lane in Old Town, this classic Conch home offers a setting where life feels just a little slower and a lot more enjoyable. From the moment you step inside, the home draws you outward, where indoor living blends naturally with the surrounding outdoor spaces. The heart of the home is built around entertaining. The living area, kitchen, and dining space come together in a way that encourages gathering, while the outdoor covered patio is perfect for dining or lounging creating a natural e...On a quiet lane in Old Town, this classic Conch home offers a setting where life feels just a little slower and a lot more enjoyable. From the moment you step inside, the home draws you outward, where indoor living blends naturally with the surrounding outdoor spaces. The heart of the home is built around entertaining. The living area, kitchen, and dining space come together in a way that encourages gathering, while the outdoor covered patio is perfect for dining or lounging creating a natural extension for everything from slow mornings to late evenings. Step outside and the pace shifts. Sitting on a large L shaped lot, the pool becomes the centerpiece, surrounded by deck space, greenery, and just enough privacy to make it feel like your own little corner of the island. The inviting primary suite is a peaceful retreat, featuring vaulted ceilings and French doors that open directly to the pool. Upstairs, two additional bedrooms and a shared bath provide comfortable separation, while the detached poolside cottage, with its own bath and outdoor shower offers flexible space for guests, a workspace, or added privacy. A convenient powder room is also located just off the kitchen.Dade County pine walls, wood floors, and tall ceilings bring warmth and authenticity, giving the home a sense of history without ever feeling heavy. It is comfortable, inviting, and easy to live in, the kind of home that makes everyday moments feel just a little more special.Quiet, central, and layered with history, 1109 Stump Lane stands as one of Old Town's most compelling hidden opportunities, a rare chance to own a truly private retreat in the heart of Key West.
View MoreCourtesy of
Agency Name: Truman & Co. (KW)
Agency Contact: 305-587-3407
Agent Name: Terri Spottswood
Presented by
Agent Name: Eda Ramsdell
Agent Phone: 772.341.9350
Agency Title: The Keyes Company
Request Info
Send an email with a link to
1109 Stump Lane, Key West, FL 33040.
Email 1109 Stump Lane, Key West, FL 33040
Thank you for your inquiry! As a thank you, we have a Special Mortgage Offer for You.
We would like to provide you a free, no-obligation, home loan pre-approval review.